CHAPTER 17: Air-Oil Systems & Intensifiers
Air-oil cylinders, tanks, and intensifiers
Air-oil systems
Compressed air is suitable for many low-power systems, but air’s compressibility makes it difficult to control actuators smoothly and accurately. Some low-power systems need the smooth control, rigidity, or synchronization capabilities normally associated with oil hydraulics. All of these features are available to low-power circuits by using compressed air for power and oil for control. Purchased or specially built air-oil circuits give smooth control when the power requirement is low.
Attached oil-control cylinders
Some manufacturers offer attached oil-filled cylinders to control speed and/or position, Figure 17-1. These units usually work in one direction of travel in a meter-out circuit. They operate such things as drill feeds or other actions that may try to pull the cylinder out. (They also can be used with hydraulic cylinders at higher forces.)
Most manufacturers offer units with valves in the oil line that can stop flow and/or bypass the speed control. The stop control allows an air cylinder to be stopped reasonably accurately with very good repeatability. The bypass control makes it possible to have fast and controlled speeds as the cylinder advances.
The cross-sectional view in Figure 17-1 shows an air cylinder that advances rapidly with airflow controls until its attaching bracket comes in contact with the fast-advance stroke-length adjustment. At this point, air cylinder movement is retarded and controlled by the oil speed-control cylinder as oil flows through a flow control. The air cylinder cannot move any faster than the oil flow allows during this part of the cycle. A spring-loaded oil balance cylinder furnishes oil to make up for the differential loss from rod to cap ends. The air cylinder is controlled by oil flow for the remainder of the cycle.
As the air cylinder retracts and the attaching bracket contacts the rod nut, it pushes the oil speed-control cylinder back to the start position. A flapper-type 1-way check valve on the piston with through holes allows fluid to transfer back to the rod end. Excess cap end fluid is stored in the spring-loaded oil balance cylinder during this part of the cycle.
Some manufacturers offer attached units that are capable of control in both directions of travel. There also are self-contained air powered cylinders with built in oil cylinders and reservoirs. Air produces thrust while oil controls speed and/or mid-stroke stop-and-hold. Some units also have two-speed capabilities. These units look like a standard cylinder with an oversize rod.
Air-oil tank systems
Another common air-oil system uses low-pressure hydraulic cylinders coupled with air-oil tanks, Figure 17-2. These tanks hold more than enough oil to stroke the cylinder one way. An air valve piped to the air-oil tanks introduces compressed air to force oil from the tanks into the cylinder. Add flow controls and shut-off valves to the oil lines to give smooth, accurate cylinder control.
When control is only necessary in one direction, the tank on the uncontrolled side can be omitted. This type of circuit requires very good cylinder seals to prevent air or oil transfer.
Air-over-oil tanks do not intensify the oil pressure, regardless of the tank’s diameter or length. The highest possible oil pressure available simply equals the air pressure supplied.
Several cylinder suppliers offer air-oil tanks that consist of a cylinder tube with two cylinder end caps held on the tube with tie-rods. A sight glass can be a length of plastic tubing with air-line fittings attached opposite the air ports. A baffle at the air port keeps oil from being aerated when air blasts in from the valve. A baffle at the oil port keeps any vortex formed from sending air to the cylinder. This baffle also keeps returning fluid from blowing into the air port.
Air-oil tandem cylinders
Tandem cylinders are another approach to using oil for control and air for power. In Figure 17-3, the single-rod cylinder of the tandem runs on air, while the double-rod cylinder is filled with oil. Because volume is equal in both ends of the double-rod cylinder, oil flows from end to end through a flow control and/or shut-off or skip valves for accurate control of speed and stopping.
Two flow controls in opposite directions provide variable speed in both directions. A bypass flow control around the stop valve would allow for two-speed operation in one direction. (The second speed must be the slower of the two.)
The skip valve option allows a fast approach with deceleration before work contact. The deceleration signal would come from a limit switch or limit valve.
The schematic drawing in Figure 17-4 shows tandem cylinders in a synchronizing circuit. This is a practical way to make two or more air-powered cylinders move in unison. (Using flow controls to do this produces inaccurate results.) When the air valve shifts to extend the cylinders they must move at the same time. This is because the trapped hydraulic oil in the hydraulic cylinders must transfer from the top side of one cylinder to the bottom side of the other one. If one cylinder stops they both must stop at the same time.
Note that the maximum load capability is equal to the capacity of both cylinders’ thrust. With the load placed as shown, the left cylinder transfers energy to the right cylinder through the oil. This gives the right cylinder up to twice as much thrust.
A small make-up tank and check valves replenish any leakage in the plumbing or at the rod seal. If the unit is subject to heating, a small relief valve may be required to keep thermal expansion from over-pressuring the oil-filled chambers. A shut-off valve connecting the transfer lines can re-synchronize the cylinders if the piston seals allow fluid to bypass and the platen gets out of level. Re-synchronization can be handled automatically with a normally closed, 2-way spool valve and limit switches.
(For other air-oil circuits, see the author’s upcoming e-book, "Fluid Power Circuits Explained.")
Some precautions with air-oil circuits
Most air-oil circuits operate at 100 psi or less, so any pressure drop in the circuit can cut force drastically. If oil lines are undersized, cylinder movement will be very slow. Size most air-oil circuit oil lines for a velocity of about 2 to 4 fps. This low speed requires large lines and valves, but is necessary if average travel speed with maximum force is important.
Another common problem with air-oil circuits is that any air trapped in the oil makes the cylinder performance spongy. The air’s compressibility makes accurate mid-stroke stopping and smooth speed control hard to attain. Some arrangement should be provided to bleed any trapped air from the oil chambers. When using an air-oil tank system, it is best to mount the tanks higher than the cylinder they feed. All lines between the cylinder and the tanks should slope up to the tanks. Also, if possible, let the cylinders make full strokes to purge any air. With dual oil-tank systems, incorporate a means for equalizing tank levels into the design.
The cylinder seals must be as leak free and low friction as possible. Any leakage past the seals can cause tank overflow, oil misting, and loss of control.
Intensifiers (or boosters)
In some of the foregoing air-oil circuits, the usual 80- to 100-psi pressure may not be adequate for some operations. This does not mean a hydraulic pump and all the items related to it must be used. Several manufacturers make air-oil intensifiers that convert 80- to 100-psi shop air into 500- to 40,000-psi hydraulic pressure -- in small volumes of fluid.
Single-stroke intensifiers
The simplest intensifier is a single rod-end cylinder with a large piston rod. As explained in Chapter 15, a cylinder with a 2:1 area ratio rod can have pressure as high as twice system pressure in the rod end. This type intensifier is only available in ratios up to 2:1 unless special oversize rods are specified.
Another simple intensifier can be made by coupling the rod of a large-bore cylinder to that of a smaller-bore cylinder with the same stroke, Figure 17-5. Supplying the large bore cylinder with pressurized air or hydraulic fluid forces the hydraulic fluid out of the smaller bore. The upper cross-sectional view is typical of two cylinders assembled in the user’s plant from stock air and/or hydraulic cylinders. The lower cross-sectional view is a purchased assembly that takes less space and eliminates possible mounting and alignment problems. The purchased unit is limited to piston ratios that can have the same size rod in both cylinders.
Usually these intensifiers are hydraulic to hydraulic with ratios that are less than 5:1 ratio. Later we’ll see a similar design for air-to-air intensifiers with similar ratios. Never operate these types of intensifiers above the cylinders’ rated pressure. For all intensifier designs, output pressure is directly related to the area ratio between the driving piston and the driven piston (or ram).
The cross-sectional view in Figure 17-6 shows typical construction of two types of 25:1 air-oil intensifiers. They consist of 5-in. bore air cylinders with 1-in. rods displacing oil from high-pressure oil chambers. The upper cross-sectional view is a dual-head intensifier that requires some sort of blocking valve to isolate its inlet oil from its outlet oil. This is usually done with a pilot-operated check valve so flow can return when the actuator reverses.
The lower cross-sectional view is a triple-head intensifier that has an integral high-pressure seal to isolate inlet oil from high-pressure oil after the rod moves approximately 2 in. There is no need for external isolation because oil can flow freely either way anytime the ram is retracted.
A single-stroke intensifier must be sized to supply enough oil to make the working cylinder perform its work before the air piston bottoms out. It is good practice to size the intensifier for 10 to 15% more fluid than required. Avoid long fluid conductors if possible because the oil’s compressibility and stretching hose can use up the small-volume safety output quickly.
The circuit in Figure 17-7 shows a typical high-pressure air-oil circuit using the components described so far. This could be a press operation that requires a 10-in. total stroke. The stroke concludes with a 0.25-in. high-pressure stroke that generates 25 tons of force. Based on a maximum pressure of 2000 psi, a cylinder with a 6-in. bore is needed to produce the required force. The piston area of a 6-in.-bore cylinder is 28.274 in.2, so the 0.25-in. work stroke produces a volume of 7.07 in.3 of high-pressure oil. Using a standard 5-in. intensifier with a 1-in. ram, this requires
(7.07) (110%) / (0.7854) = 9.9-in. stroke plus 2 in. more for passing the high-pressure seal for a total stroke of 12 in. The volume of the 6-in. bore X 10-in. stroke high-pressure hydraulic cylinder is (28.275 in.2) X (10 in.) or 283 in.3, so the air-oil tanks should have 6-in. bores and be 12-in. long.
The cycle starts when the solenoid on the 4-way directional control valve is energized to send air to the left-hand air-oil tank. Simultaneously, the valve exhausts air from the right-hand air-oil tank. Oil at air pressure is pushed through the triple-head intensifier to the high-pressure hydraulic cylinder. The cylinder advances rapidly at low force until it contacts the work.
At work contact, pressure builds in the left-hand air-oil tank and in the pilot line to the 4-way sequence valve. With supply-air pressure at 80 psi and the sequence valve set for 65 to 75 psi, the valve shifts and cycles the intensifier. As the intensifier extends, after it travels approximately 2 in., it passes through the high-pressure seal to block low-pressure oil and force high-pressure oil into the cylinder. Pressure in the work cylinder can now go as high as 2000 psi to produce the required 25 tons of force.
When the solenoid on the 4-way directional control valve de-energizes, air exhausts from the left-hand air-oil tank and from the 4-way sequence-valve pilot. The sequence valve shifts to its original position and the triple-head intensifier retracts. Air also is directed to the right-hand air-oil tank to pressurize it for the retract stroke of the high-pressure hydraulic cylinder. After the intensifier retracts past the high-pressure seal, the work cylinder can retract quickly to end the cycle. Note: only 80 psi acting on the area of the work cylinder develops retraction force. While as much as 25 tons of force was generated during the short extension stroke, only 1869 lb are generated during retraction.
The intensifier could be cycled by other means -- such as a limit switch or a pressure switch and solenoid valve combination. It could even be operated manually.
Also note: any of the above units could be cycled with hydraulic oil as the driving force. Usually such hydraulic-to-hydraulic intensifiers are only between 2:1 and 5:1 because the input pressure can be much higher than typical compressed air.
Reciprocating intensifiers
For higher volumes of intensified fluid, several manufacturers make reciprocating units. The cross-sectional view and circuit in Figure 17-8 show a typical single-ram intensifier that uses compressed air for power and pumps oil in the high-pressure side. These units often are supplied in a ready-to-run condition as pictured. They may cycle as soon as air is supplied or they may require an external signal to start. Most reciprocating units supply less that 3-gpm maximum at low pressure and slow to a stop at maximum pressure.
To produce higher pressures, some units incorporate more than one air cylinder in series to raise the intensification ratio. These units also come with pressure chambers and rams on both ends to provide a greater volume of high-pressure oil.
Some manufacturers build reciprocating hydraulic-to-hydraulic intensifiers with ratios as high as 20:1 to generate pressures up to 12,000 psi. These units supply small volumes of high-pressure oil from low- to high-pressure input fluids.
Special air-oil units
Several companies manufacture special self-contained air/hydraulic cylinders with integral tanks and intensifiers that produce low-pressure advance, high-pressure work, and low-pressure retract strokes. Externally, they appear to be over-length air cylinders, but they can have output forces as high as 150 tons.
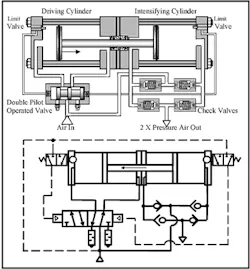
Air-to-air intensifiers
When an application requires a small volume of high-pressure air, try an air-to-air intensifier instead of a high-pressure compressor. The cross-sectional view and circuit in Figure 17-9 shows the makeup of a 2:1 intensifier that can almost double output pressure. Inlet air is delivered to the driving cylinder by a double pilot-operated valve and to the intensifying cylinder through check valves. As the two pistons stroke to the right, the full area of the left piston and the annulus area of the right piston are pushing the right piston’s full area at almost double force. Thus, air exiting the right piston is at about twice input pressure. The discharged air flows through a check valve and on to the high-pressure circuit.
When the pistons complete their strokes, the one on the right contacts a small integral limit valve that sends a signal to the double pilot-operated valve and shifts it to reverse the pistons’ strokes. The same areas and forces push in this direction but they work against a smaller intensifying area. The intensifier will continue cycling until pressure at the pressure-air outlet port reaches full pressure. At that point, the pistons stall and hold pressure until the downstream pressure drops.
These intensifiers will stroke considerably more slowly at about 80% of their maximum pressure so it is best if the output air pressure is at least 20% above what is required. A regulator at the working machine can control the actual working pressure so less air is wasted.
Intensification ratios and output volumes are functions of piston ratios, bore sizes, and stroke lengths. Outputs up to 250 psi are standard with most manufacturers. Some offer higher pressures. Very high-pressure units use hydraulic cylinders to drive gas cylinders to reach pressures as high as 45,000 psi.
(For more air-oil and intensifier circuit designs, see the author’s upcoming e-book, "Fluid Power Circuits Explained.")










