Troubleshooting Challenge: Elephant House Doors Open on Their Own
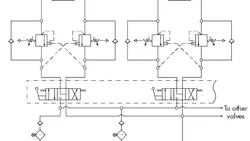
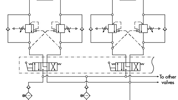
St. Louis Zoo officials asked Valtec Hydraulics Inc., St. Louis, to design a preventive maintenance program for hydraulic system in the zoo’s elephant house. The Zoo did not have an accurate schematic after changes had been made to the hydraulic system over the years. The existing schematic showed flow-control valves in the lines to and from a cylinder, but the valves had been replaced with Sun counterbalance valves. Directional-control valves were shown as blocked center, three-position valves, but had been replaced with motor spools — A and B to tank with P-blocked valves.
Several control stations in different locations were also added over the years. In some areas, shuttle valves in the A and B cylinder lines were installed to let multiple valves control the same cylinder. Several manifolds were also added—from a single sub-plate to eight bank units. A second hydraulic power unit was installed the previous year and tied into the central system. The power units could all be isolated with shutoff valves.
More than 36 cylinder/valve/gate assemblies were plumbed using 1-in. stainless steel tubing. Most of the tubing was elevated overhead. The system also had five inline pressure filters and one return filter. The entire hydraulic system contains nearly 1,000 gal of fluid — in this case, a 10-weight vegetable base hydraulic fluid.
A problem occurred after Valtec changed all five pressure filters during normal scheduled service. A mechanic ran one door at the end of the circuit to bleed air from the pressure line. Everything seemed to run fine, so the maintenance team packed up and left.
An elephant trainer later went to open three doors at roughly the same time. The entire barn came alive. After studying a video, they saw eight hydraulic functions moving on their own. Some doors opened and some closed, and an elephant restraining device had lifted up. The cylinders seemed to move at random. Luckily, no one was injured. Valtec’s technicians believed air caused a pressure surge in the return line, which had a straight path to each cylinder.
Valtec believed they had stumbled onto a problem that existed for a long time and needed to be resolved. They were told, “We don’t want elephants roaming the building without our knowledge.”
Any idea what caused the problem and what was done to fix it?
Find the Solution
Think you know the answer to this month’s problem?
Submit your solution by emailing Mindy Timmer at [email protected]. All correct solutions submitted by May 1, 2015, will be entered into a random drawing for a $50 gift card. The winner will be notified, and his or her name will be printed in a future issue. Only one gift card will be awarded to any participant within a calendar year.
Solution to Last Month's Problem:
The first problem was installing the flapper-type check valve in an intake line to resolve the air entry problem. The second obvious problem was the failure caused by the system pressure causing the pump to rotate in the opposite direction pressurizing the intake line. I found that disconnecting the air bleed valve and capping the lines solved to problem.
When I took over managing a large HPU fabrication shop years ago, customers complained about this same problem on several of our new units. I found our assembly mechanics thought an air bleed valve did not need to return below the fluid level. The trouble is, an air bleed valve is normally open until oil passes through it, causing it to close and stay closed as long as system pressure is present. When all pressure is lost, the valve can open to atmosphere, which allows air to enter the system. The result is loss of prime.
We called the supplier, and he assured us the HPU had a standpipe. We used a mirror to look down the removed filler-breather hole and determined it had come loose, allowing air to enter the system.
About the Author
Robert Sheaf
President
Robert J. Sheaf Jr., is the founder and president of CFC Industrial Training, formerly Certified Fluid Consultants, part of CFC-Solar Inc. CFC-Solar provides technical training, consulting, and field services to any industry using fluid power technology.


